シェアースペースの入居者募集
2026年3月 3日
当事務所では、シェアースペースの入居者の募集をしています。
これまでの入居者が移転しますので、そこに入る入居者を探しています。
場所:東京都新宿区片町3-10 ステージK B1F
(都営新宿線・曙橋駅A4出口から徒歩3分)
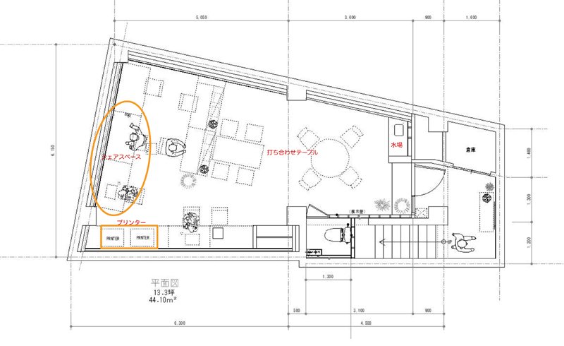
■事務所の内外観写真
・広めのデスクが2つありますので、1人又は2人まで入居可能です。
■その他の備品等は以下の通りで,使用料は家賃込みです。
・インターネット設備完備
・電話は、1回線利用可能
・レーザープリンター、インクジェットプリンター利用可能(用紙は別途)
・打ち合わせテーブル(2つ)は利用出来ます。
・建築事務所として、ここで登録が可能です。
・必ずしも意匠設計事務所でなくても構いません。例:構造事務所、設備事務所、デザイン事務所等
・特に独立したばかりの設計者には向いていると思います。
・賃料は、1人で4万円/月、2人で6万円/月程度を考えています。
その他、ご興味がある方はご遠慮無くご連絡ください。
■連絡先(大系舎 大戸) ooto@taikeisha.net
投稿者 ooto : 2026年3月 3日 11:34 ツイート